Omschrijving

Unieke Bouwkavel aan Vaarwater – Directe Toegang tot de Westeinderplassen

Wonen aan het water, bouwen naar uw wens!

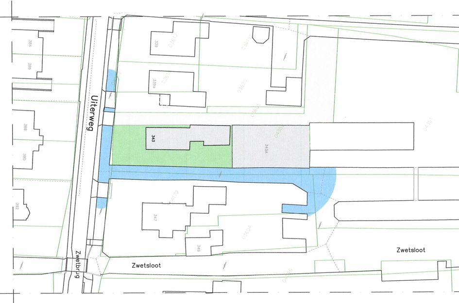
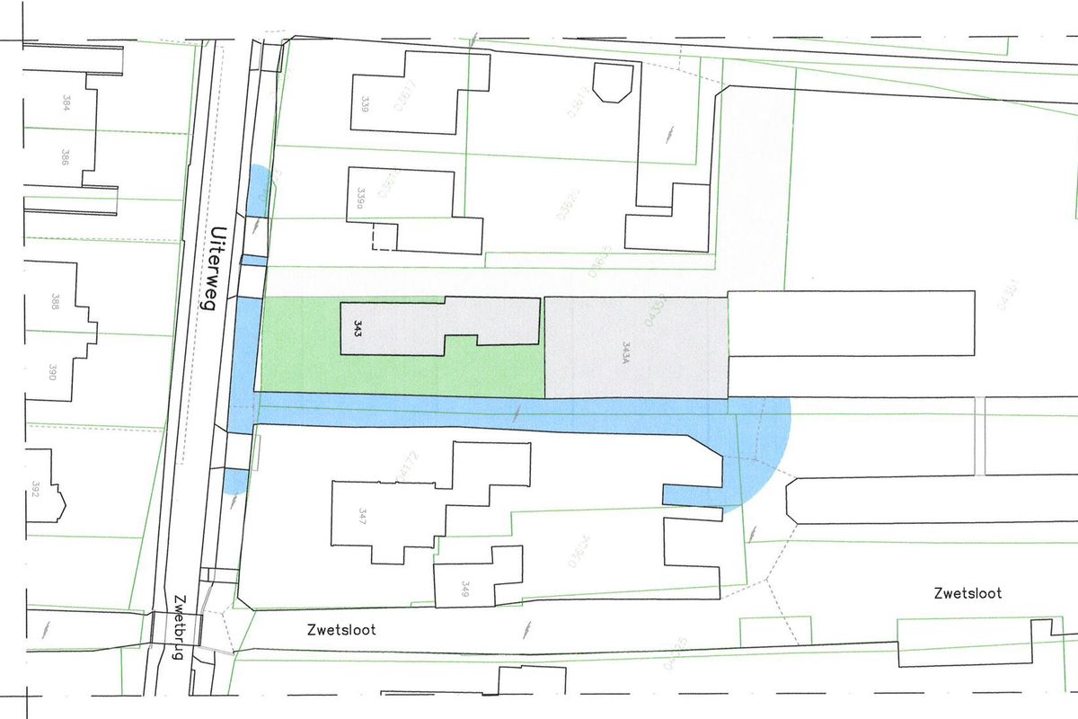
Aan de geliefde Uiterweg in Aalsmeer ligt deze unieke kans op u te wachten: een royale bouwkavel van circa 1.000 m² eigen grond, direct gelegen aan vaarwater met directe verbinding naar de schitterende Westeinderplassen. Een bijgebouw met garage/berging of zorgwoning behoort tot de mogelijkheden.
Hier combineert u rust, ruimte en recreatie met de vrijheid om uw eigen droomwoning te realiseren.

Uw droomwoning, al deels vormgegeven.

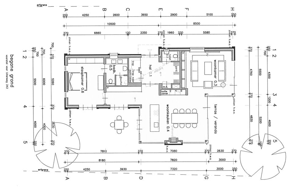
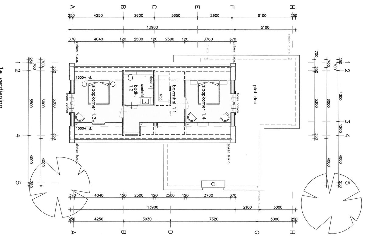
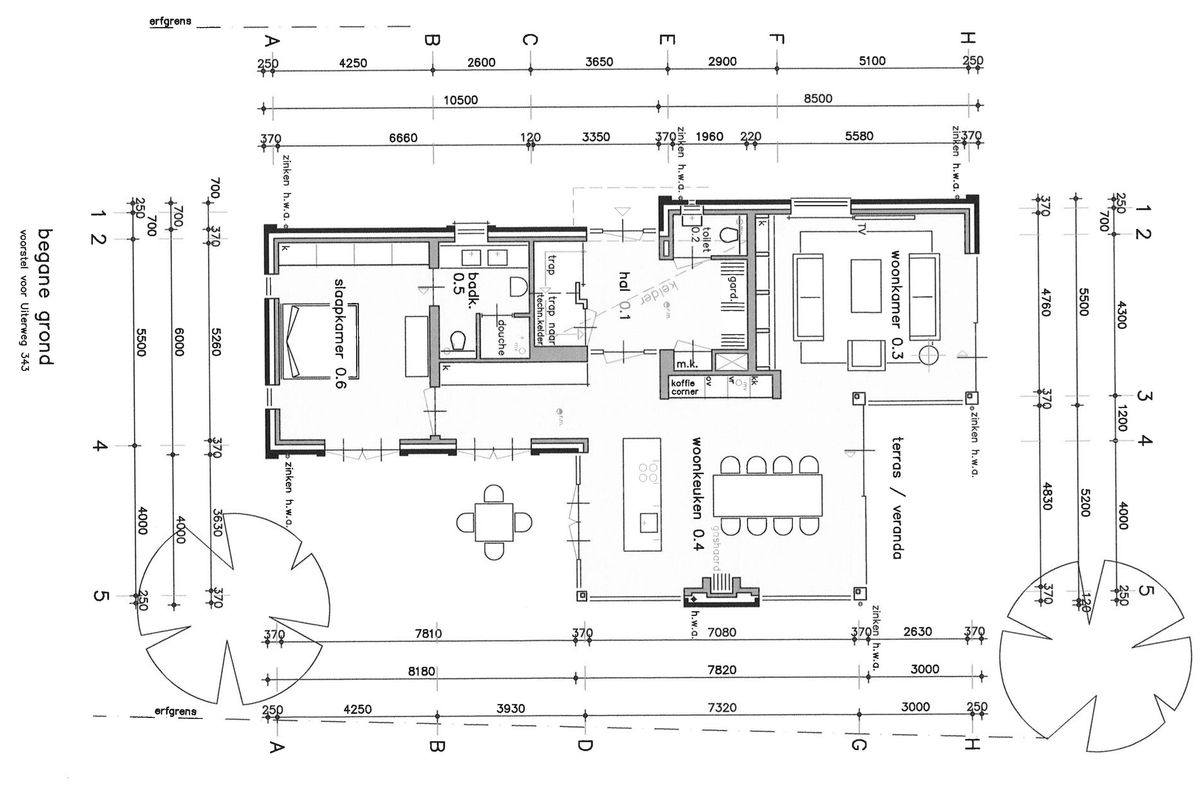
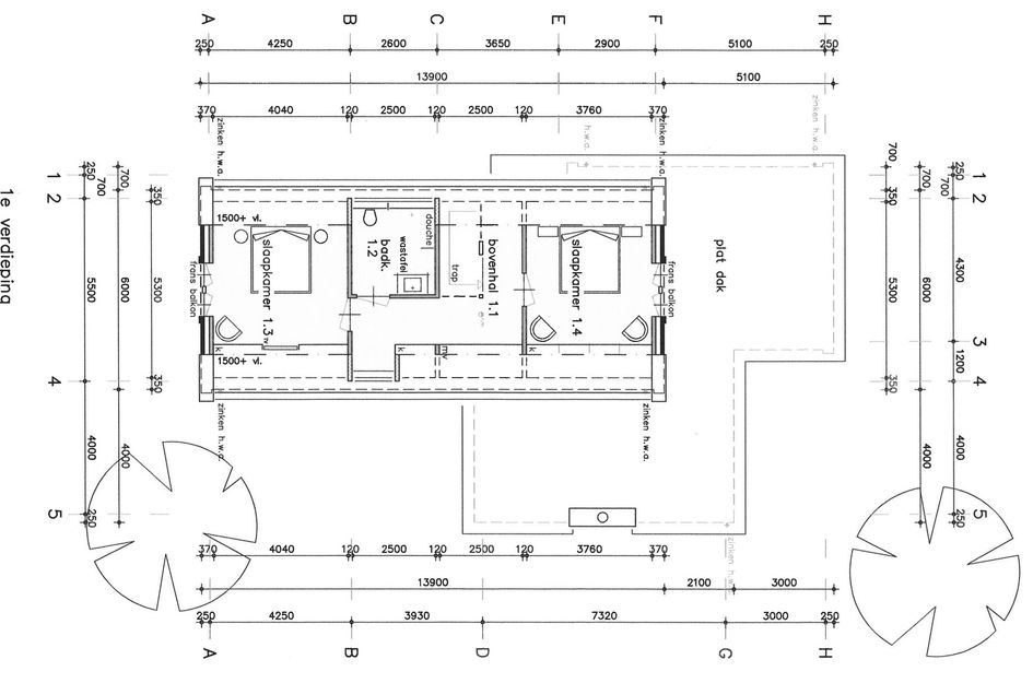
Er zijn reeds schetsen beschikbaar van architect Richard Pannekoek voor een luxe vrijstaande woning met een doordachte indeling:
- 3 slaapkamers, waarvan één met badkamer op de begane grond;
- In totaal 2 badkamers;
- Een eigen botenhuis aan het water;
- Een bijgebouw met garage/berging of zorgwoning behoort tot de mogelijkheden;
- Deze ontwerpen vormen een solide basis voor wie stijlvol en comfortabel wil wonen op een unieke plek aan het water;
- Perfecte ligging met alles binnen handbereik!

De locatie is ideaal:

Binnen enkele minuten bent u bij gezellige horeca, diverse jachthavens en het winkelcentrum van Aalsmeer
Scholen, kinderopvang en een gezondheidscentrum bevinden zich op korte fietsafstand
En natuurlijk vaart u zó vanaf uw eigen aanlegplaats richting de uitgestrekte Westeinderplassen voor een dagje op het water

Kortom: dit is een zeldzame kans om te bouwen en wonen op een toplocatie in Aalsmeer, waar luxe, vrijheid en natuur samenkomen.

Interesse? Neem contact met ons op voor meer informatie, de architectenschetsen of een bezichtiging ter plaatse.
Lees meer

Kenmerken

Overdracht

Vraagprijs
€ 1.175.000,- k.k.
Status
beschikbaar
Aanvaarding
in overleg

Bouw

Soort woning
woonhuis
Soort woonhuis
villa
Type woonhuis
vrijstaande woning
Aantal woonlagen
2
Bouwvorm
bestaande bouw
Bouwperiode
1906-1930

Energie

Energielabel
G

Oppervlakten en inhoud

Woonoppervlakte
141 m²
Perceeloppervlakte
1.000 m²
Inhoud
752 m³

Indeling

Aantal kamers
6
Aantal slaapkamers
5

Buitenruimte

Tuin
Achtertuin met een oppervlakte van 555 m² en is gelegen op het zuidoosten
Lees meer

Locatie

Interesse? Neem contact op met de makelaar!

Ik wil*