Twee-onder-een-kapwoning
Twee-onder-een-kapwoning
Twee-onder-een-kapwoning
Twee-onder-een-kapwoning
Twee-onder-een-kapwoning
Twee-onder-een-kapwoning

Twee-onder-een-kapwoning

Wieringerwaard

€ 540.000,- v.o.n.

Omschrijving

Aan de lint van Wieringerwaard verrijst een volledig nieuwe, kindvriendelijke woonwijk met maar liefst 19 woningen.

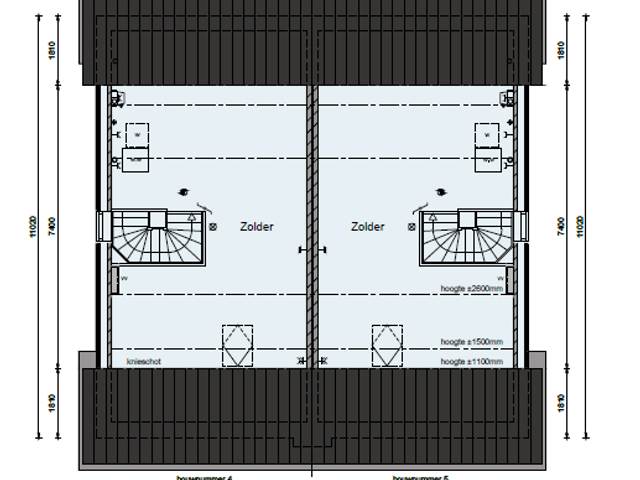
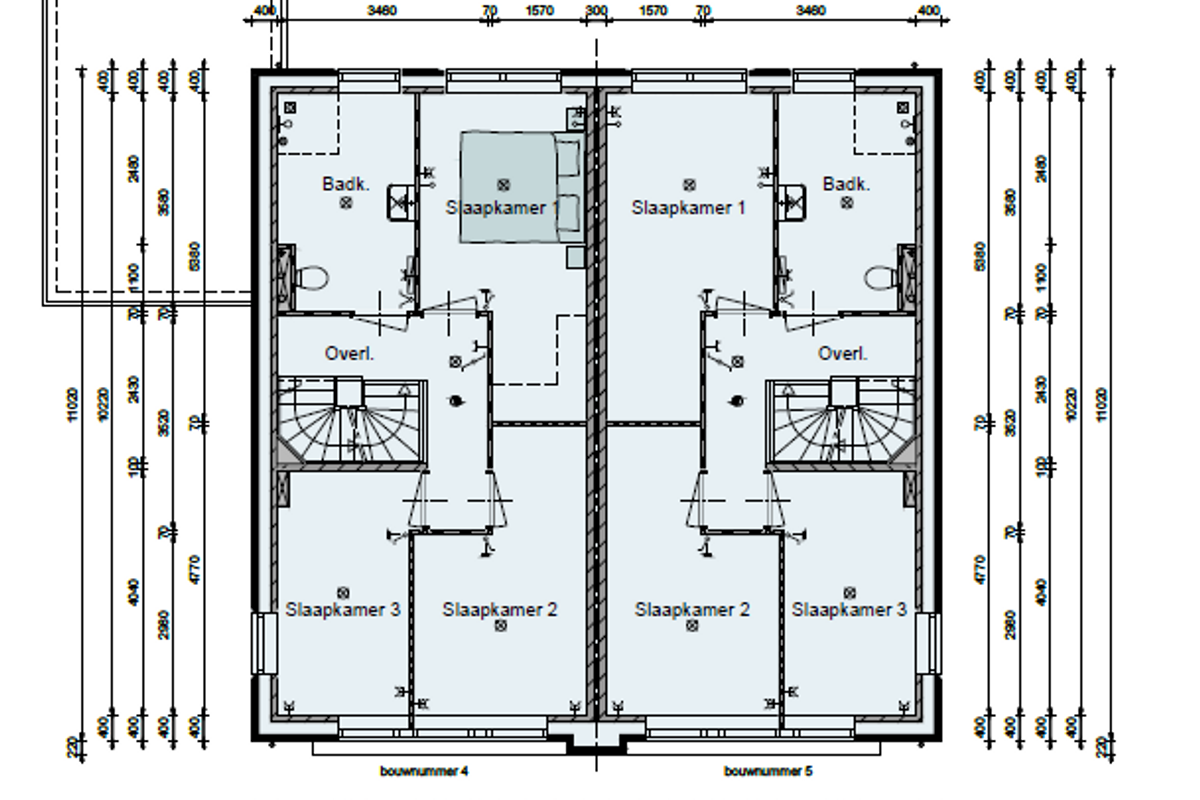
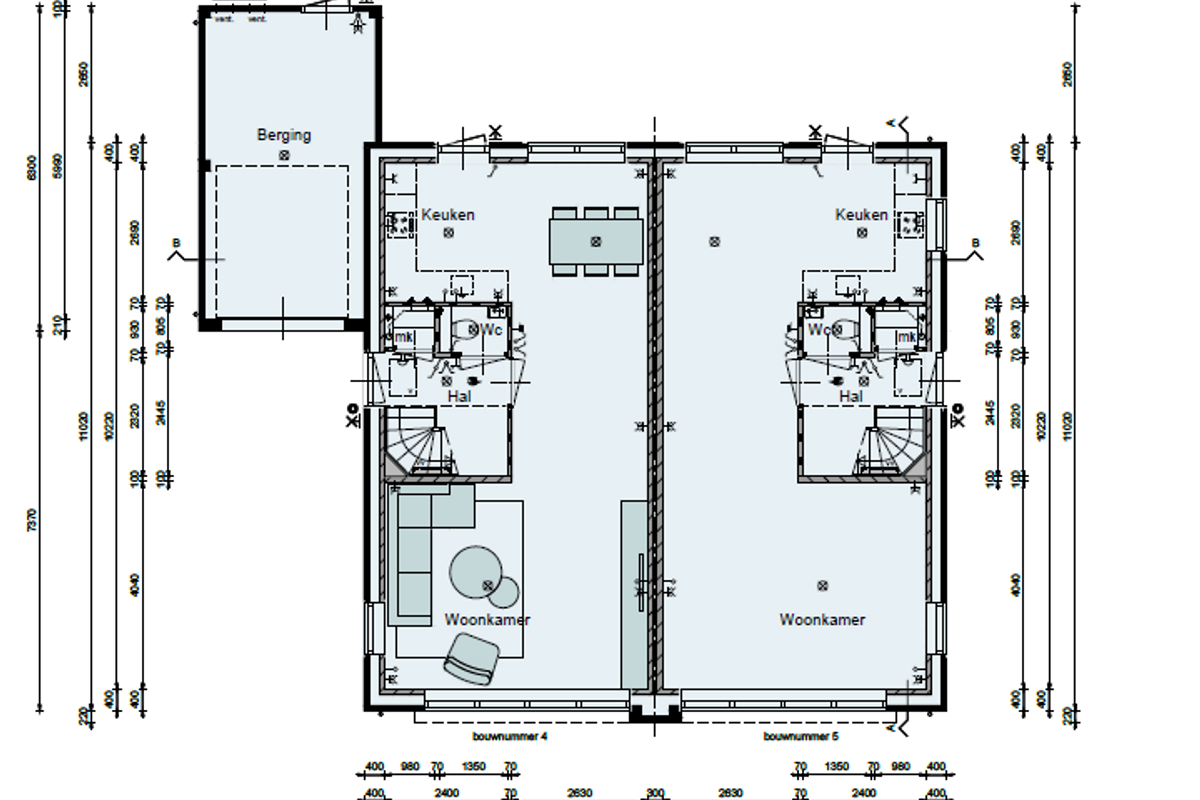
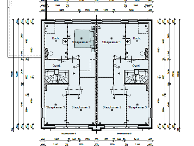
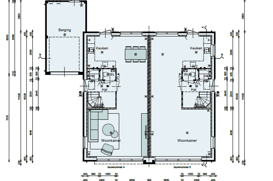
Deze twee-onder-een-kapwoning van maar liefst 136 m² krijgt 3 slaapkamers en een ruime zolder waar ook nog een slaapkamer gerealiseerd kan worden en heeft de tuin op het westen dus de hele middag en na-middag de zon in de gehele tuin.

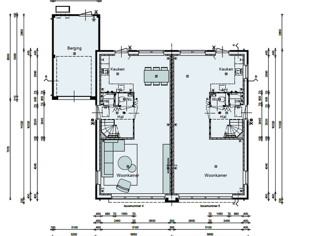
De woonkamer zal standaard straatgericht zijn en de ruime keuken leent zich bij uitstek voor een grote keuken. Uiteraard is alles nog te personaliseren en ook zijn deze woonkamer en keuken nog om te draaien. Deze woning kenmerkt zich verder door de unieke hoekligging en losstaande garage.

De woningen worden conform de laatste eisen en normen gebouwd. Dus ook zeer energiezuinig. Met een volledig elektrische warmtepomp en enkele zonnepanelen zit u er straks lekker comfortabel en warmpjes bij. Meer zonnepanelen behoort ook nog tot de opties en ook kunt u de woning nog op diverse andere punten helemaal personaliseren. De badkamer en toilet behoren bij de basisafwerking en zijn volledig werkend en waterdicht bij oplevering. Uiteraard kunt u hier vooraf ook al heel veel personalisatie wensen in kwijt.

Ook de tuin is nog naar eigen inzicht in te richten, zowel voor als achter, De berging is ruim genoeg voor alle spullen zoals fietsen, gereedschappen en andere tuinspullen. In de voortuin zal ruimte zijn voor 2 parkeerplaatsen op eigen terrein.

De wijk kenmerkt zich verder door een groot groen veld in het midden van het hofje, waar door de gemeente een kinderspeelplaats zal worden ingericht.

Wieringerwaard is een dorp waar je rustig thuis komt en waar de kinderen rustig op straat kunnen spelen. Basisschool, kinderopvang en sportverenigingen zijn op loopafstand. Met diverse grotere plaatsen op korte afstand heeft u toch alles binnen handbereik, maar zonder de drukte.
Lees meer

Kenmerken

Overdracht

Koopsom
€ 540.000,- v.o.n.
Status
beschikbaar
Aanvaarding
in overleg

Bouw

Soort woning
woonhuis
Soort woonhuis
eengezinswoning
Type woonhuis
2-onder-1-kapwoning
Aantal woonlagen
3
Kwaliteit
normaal
Bouwvorm
nieuwbouw
Bouwperiode
2011-
Dak
zadeldak
Voorzieningen
mechanische ventilatie, dakraam en tv kabel

Energie

Energielabel
A+++
Verwarming
vloerverwarming geheel en warmtepomp
Warm water
elektrische boiler eigendom

Oppervlakten en inhoud

Woonoppervlakte
136 m²
Perceeloppervlakte
396 m²
Inhoud
450 m³

Indeling

Aantal kamers
5
Aantal slaapkamers
3

Buitenruimte

Ligging
in woonwijk

Garage / Schuur / Berging

Schuur/berging
vrijstaand steen
Lees meer

Gallerij

Interesse? Neem contact op met de makelaar!

Ik wil*