Sibergstraat 22
Sibergstraat 22
Sibergstraat 22
Sibergstraat 22
Sibergstraat 22

Sibergstraat 22

Den Haag

€ 1.250.000,- k.k.

Omschrijving

Sibergstraat 16, 20 en 22 – Den Haag / Bezuidenhout

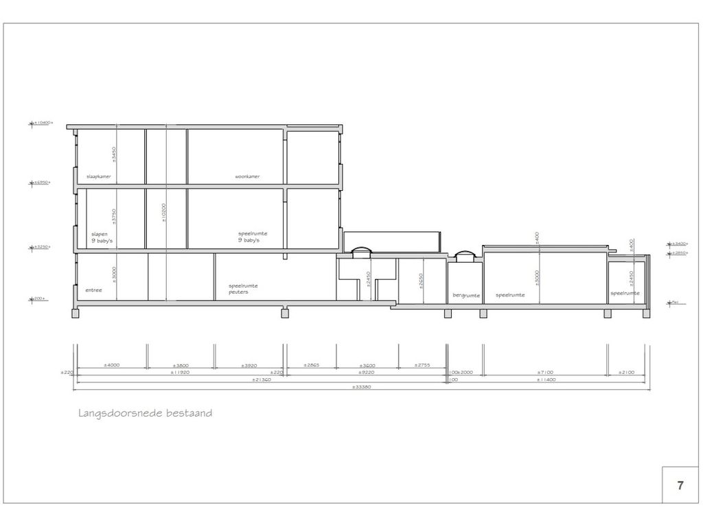
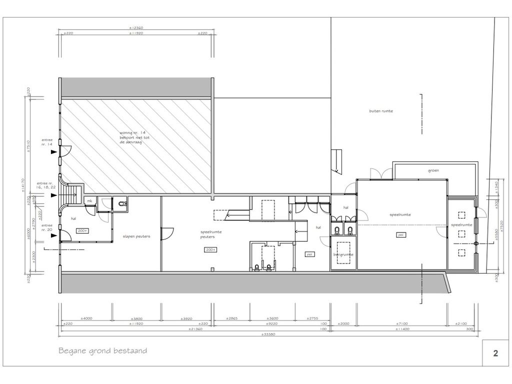
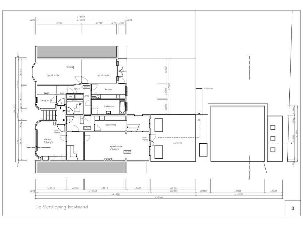
In de gewilde jaren ’30-wijk Bezuidenhout bieden wij u een volledig verhuurd beleggingsobject aan. Het geheel omvat een parterrewoning, een dubbel bovenhuis en een portiekwoning op de eerste verdieping, met een totale oppervlakte van bijna 500 m² en een netto woonoppervlakte van 464 m². Het object beschikt reeds over de woonbestemming en biedt uitstekende mogelijkheden voor splitsing in meerdere woningen en/of als goed onderhouden beleggingspand met een aantrekkelijk rendement.

Koopsom vanaf € 1.250.000,-

Het geheel is rustig gelegen op een perceel van 342 m², beschikt over een dakterras op de eerste verdieping en een besloten, zonnige tuin van meer dan 100 m² op het zuidwesten. Het pand is goed onderhouden; de meest recente renovatie dateert uit 2021. De huuropbrengst bedraagt momenteel circa € 85.000 per jaar en de huidige huurovereenkomsten lopen tot maart 2028.

Mogelijkheid tot ontwikkeling/transformatie
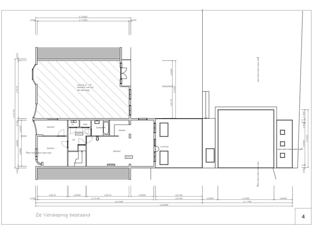
In het huidige bestemmingsplan heeft het object de bestemming Wonen. Op een recent ingediend principeverzoek heeft de gemeente Den Haag positief gereageerd op de realisatie/transformatie naar vijf appartementen. Tekeningen voor deze ontwikkeling, opgesteld door MR-Studio, zijn beschikbaar. Daarnaast is een uitbreiding van circa 60 m² middels een opbouw binnen het bestemmingsplan mogelijk.

Ligging:
In het gewilde stadsdeel 'Haagse Hout' is de rustige jaren '30 wijk Bezuidenhout gelegen. Vanuit de wijk steek je via het Centraal station direct door naar de binnenstad. Wil je liever even ontsnappen aan de hectiek van de stad? Dan loop je zo het prachtige Haagse Bos in. Hier vind je ook Huis Ten Bosch, de toekomstige residentie van de Koninklijke familie. Bezuidenhout is dus een wijk met koninklijke allure!

Je dagelijkse boodschappen in Bezuidenhout doe je in de Theresiastraat. Je vindt er diverse winkels en plekken voor een hapje en een drankje. Of je gaat naar het winkelcentrum New Babylon vlakbij het Centraal Station. In de wijk zijn ook Hogeschool 'In Holland' en de Campus Den Haag van de Universiteit Leiden gevestigd en mede daarom vind je er ook leuke horecagelegenheden en zijn alle voorzieningen in de directe nabijheid.


Tuin
Rustig gelegen besloten tuin op het zonnige zuidwesten en een groot dakterras op de 1e verdieping met directe toegang tot de tuin aan de achterzijde.

Bijzonderheden
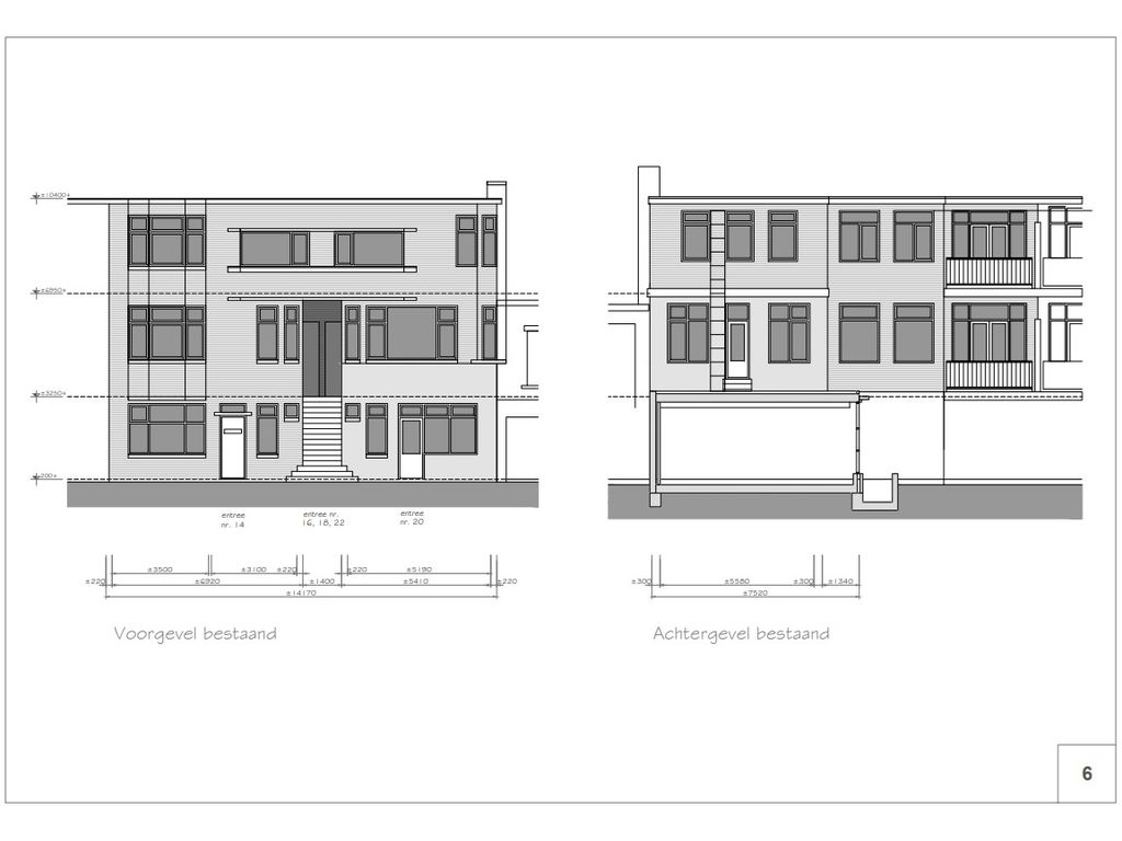
- Bouwjaar: 1926
- Goed onderhouden / in 2021 gerenoveerd.
- Geheel verhuurd aan goede partij voor circa €85.000,-- per jaar exclusief energie en lasten.
- Totale gebruiksoppervlakte 499m² / Woonoppervlakte 464m².
- Mogelijkheid tot transformatie/ontwikkeling naar 5 tot 6 woningen/appartementen.
- Rustige ligging in de gewilde wijk 'Bezuidenhout'.
- Zonnige tuin van meer dan 100m² op het zuidwesten.
- Oplevering in overleg.

Koopsom vanaf € 1.250.000,- / Vraagprijs € 1.495.000,-
Alle biedingen vanaf € 1.250.000,-- worden in overweging genomen.
Lees meer

Kenmerken

Overdracht

Koopsom
€ 1.250.000,- k.k.
Status
beschikbaar
Aanvaarding
in overleg

Bouw

Soort woning
woonhuis
Soort woonhuis
herenhuis
Type woonhuis
hoekwoning
Aantal woonlagen
3
Kwaliteit
normaal
Bouwvorm
bestaande bouw
Bouwperiode
1906-1930
Dak
plat dak
Voorzieningen
airconditioning

Energie

Energielabel
C
Verwarming
c.v.-ketel
Warm water
c.v.-ketel
C.V.-ketel
combi-ketel, eigendom

Oppervlakten en inhoud

Woonoppervlakte
464 m²
Perceeloppervlakte
342 m²
Inhoud
1.622 m³
Buitenruimte oppervlakte
36 m²

Indeling

Aantal kamers
10
Aantal slaapkamers
9

Buitenruimte

Ligging
aan rustige weg en in woonwijk
Tuin
Achtertuin met een oppervlakte van 100 m² en is gelegen op het zuidwesten
Lees meer

Gallerij

Plattegronden

Locatie

Downloads

Interesse? Neem contact op met de makelaar!

Ik wil*