Schollevaartse Dreef
Schollevaartse Dreef
Schollevaartse Dreef
Schollevaartse Dreef
Schollevaartse Dreef
Schollevaartse Dreef
Schollevaartse Dreef
Schollevaartse Dreef

Schollevaartse Dreef

Rotterdam

prijs op aanvraag

Omschrijving

Object: Direct bij de eigenaar
Huurtermijn: Onbepaalde termijn
Oplevering: Zie foto
Inkomen eis: 2,9 x Bruto huur
Garantiestelling mogelijk: Ja
Borg: 1 Maand
Bemiddeling kosten: Nee
Woningdelers toegestaan: Ja
Huisdieren toegestaan: Afhankelijk van de Eigenaar
Huurtoeslag grens: Nee
Geschikt voor studenten: Afhankelijk van de Eigenaar
Lees meer

Kenmerken

Overdracht

Huurprijs
prijs op aanvraag
Status
beschikbaar
Aanvaarding
in overleg

Bouw

Soort woning
appartement
Soort appartement
bovenwoning
Aantal woonlagen
1
Woonlaag
1
Bouwvorm
bestaande bouw
Bouwperiode
1971 - 1980
Open portiek
nee

Energie

Oppervlakten en inhoud

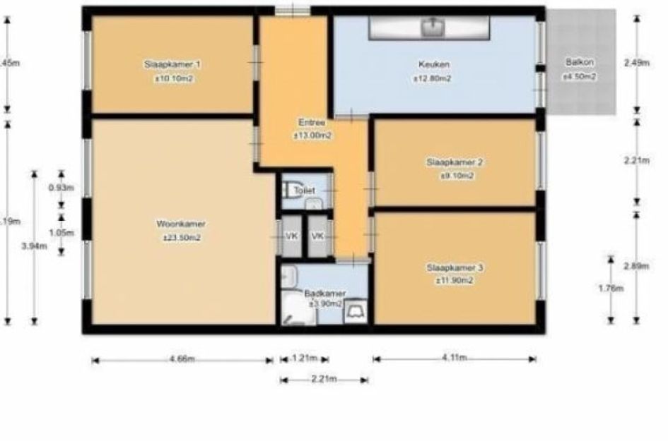
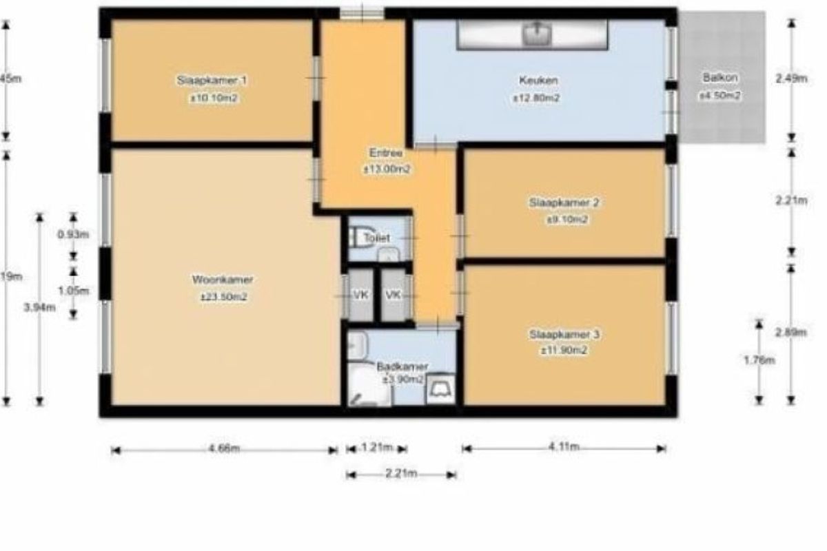
Woonoppervlakte
88 m²

Indeling

Aantal kamers
4
Aantal slaapkamers
3
Lees meer

Locatie

Interesse? Neem contact op met de makelaar!

Ik wil*