Welkom bij Roxxle
Inloggen
Registreren
E-mailadres
Wachtwoord
Inloggen
Wachtwoord vergeten?
E-mailadres
Wachtwoord
Ik ben een makelaar en wil een zakelijk account aanmaken
Registreren
Koopwoningen
Huurwoningen
Buitenland
Nieuwbouw
Actueel
Kantoren
Contact
Inloggen
Rietvinkstraat ONG
Eindhoven
prijs op aanvraag
Verhuur
makelaar:
Rentfinder
020-2442531
info@rentfinder.nl
Neem contact op met de makelaar
Omschrijving
Nee
Direct bij de eigenaar
Borg
970
Garantiestelling
Mogelijk
Huurtoeslag
Niet mogelijk
Inkomen eis
3,1 X Maandhuur Bruto
Huurtermijn
Onbepaalde termijn
Oplevering
Kaal
Lees meer
Kenmerken
Overdracht
Huurprijs
prijs op aanvraag
Status
beschikbaar
Aanvaarding
in overleg
Bouw
Soort woning
appartement
Soort appartement
bovenwoning
Aantal woonlagen
1
Woonlaag
1
Bouwvorm
bestaande bouw
Bouwperiode
1971 - 1980
Open portiek
nee
Energie
Oppervlakten en inhoud
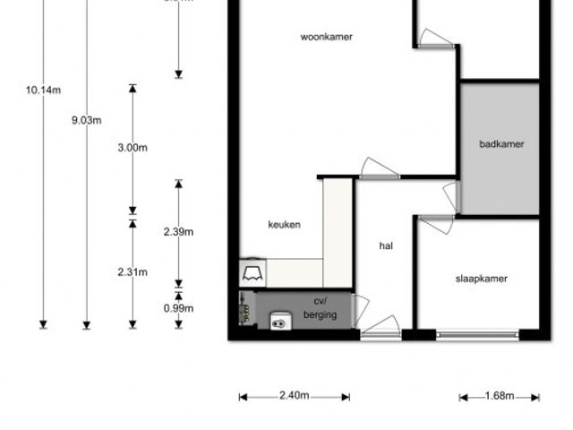
Woonoppervlakte
67 m²
Indeling
Aantal kamers
3
Aantal slaapkamers
2
Lees meer
Gallerij
Locatie
Interesse? Neem contact op met de makelaar!
Ik wil*
Een bezichtiging aanvragen
Meer informatie
Naam *
Telefoonnummer
Email *
Bericht *
Verstuur