Omschrijving

Moderne Studio in het Hart van Leiden – Hogewoerd 46 A-2

Ben je op zoek naar een instapklare studio op een toplocatie in het bruisende centrum van Leiden? Dan is deze moderne studio op de eerste verdieping aan de Hogewoerd 46 A-2 een buitenkans! Gelegen in een prachtig rijksmonument, biedt deze woning een perfecte combinatie van historische charme en moderne luxe. De ideale keuze voor starters, studenten, of als pied-à-terre.

Met een woonoppervlakte van circa 26 m² biedt deze sfeervolle studio alles wat je nodig hebt voor comfortabel en efficiënt wonen. De hotelachtige afwerking en luxe PVC-vloer maken het tot een bijzonder aantrekkelijke woning. Het is zelfs mogelijk om de studio te kopen samen met A1 en/of A3 voor een extra ruimtelijk effect, wat het ideaal maakt voor studerende kinderen.

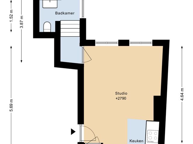
Indeling:
De studio is gelegen aan de achterzijde van het pand op de eerste verdieping, wat zorgt voor extra rust en privacy. De woon-/slaapruimte is praktisch ingericht, voorzien van een nette PVC-vloer die het geheel een luxe uitstraling geeft. Er is voldoende ruimte voor een zithoek, slaapgedeelte en een eettafel.
De open keuken is modern en van alle gemakken voorzien met diverse inbouwapparatuur, zoals een inductiekookplaat met afzuigsysteem, koelkast en combi-oven. De nette badkamer is strak afgewerkt en beschikt over een inloopdouche, toilet en wastafel, met eigentijdse materialen.

Bijzonderheden:
• Woonoppervlakte ca. 26 m²
• Energielabel C
• Gelegen op de eerste verdieping, aan de achterzijde van het gebouw
• Gelegen in een rijksmonument met een hotelachtige afwerking
• Voorzien van een luxe keuken met inbouwapparatuur
• Badkamer met inloopdouche en toilet
• Nieuwe, actieve VvE (€85,45 p/m)
• GWL-verrekening op basis van verdeling eigendomsaandeel
• MJOP aanwezig (Meerjaren Onderhoudsplan)
• Gelegen in het centrum van Leiden

Locatie:
Deze studio bevindt zich in de geliefde wijk Levendaal-Oost, midden in het historische centrum van Leiden. Op loopafstand vind je een breed scala aan winkels, supermarkten, cafés, restaurants en culturele hotspots zoals musea en theaters. Het Centraal Station en diverse busverbindingen zijn goed bereikbaar. Ook ben je snel op de uitvalswegen richting Den Haag, Amsterdam of Utrecht.

Kortom: een perfecte plek voor wie compact maar comfortabel wil wonen op een centrale locatie in één van de mooiste steden van Nederland.

Interesse? Neem snel contact op voor een bezichtiging en ontdek zelf de charme van deze fijne studio in een rijksmonument!
Lees meer

Kenmerken

Overdracht

Vraagprijs
€ 194.000,- k.k.
Status
verkocht onder voorbehoud
Aanvaarding
in overleg

Bouw

Soort woning
appartement
Soort appartement
bovenwoning
Aantal woonlagen
1
Woonlaag
1
Kwaliteit
luxe
Bouwvorm
bestaande bouw
Bouwperiode
-1906
Open portiek
nee
Dak
samengesteld dak
Voorzieningen
tv kabel

Energie

Energielabel
C
Verwarming
c.v.-ketel
Warm water
c.v.-ketel
C.V.-ketel
gas gestookte combi-ketel uit 2020, eigendom

Oppervlakten en inhoud

Woonoppervlakte
25 m²

Indeling

Aantal kamers
2
Aantal slaapkamers
1

Buitenruimte

Ligging
in centrum en in woonwijk
Lees meer

Plattegronden

Locatie

Interesse? Neem contact op met de makelaar!

Ik wil*