Omschrijving

Sfeervolle benedenwoning in hartje Leiden – Hoefstraat 54

Op zoek naar een charmante woning in het centrum van Leiden? Deze benedenwoning van ca. 38 m² ligt in een rustige straat, maar toch met alle gemakken van de binnenstad om de hoek. Ideaal voor wie comfortabel wil wonen op een centrale locatie!

Indeling
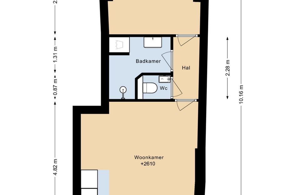
Via de entree bereik je de keuken aan de voorzijde, voorzien van moderne inbouwapparatuur. De lichte woonkamer grenst hier direct aan en biedt een prettige leefruimte. De woning is daarnaast voorzien van vloerverwarming, wat zorgt voor extra comfort. Vanuit de hal heb je toegang tot het separate toilet en de nette badkamer met inloopdouche, wastafel en aansluiting voor de wasmachine. De slaapkamer bevindt zich aan de achterzijde van de woning.

De buurt
De woning ligt in de wijk Levendaal-West, een levendige en geliefde buurt in de Leidse binnenstad. Je woont hier rustig, maar loopt binnen enkele minuten naar winkels, supermarkten, gezellige cafés en restaurants. Ook diverse musea, de markt en het station zijn gemakkelijk bereikbaar.

Pluspunten op een rij:
• Rustige ligging in het centrum van Leiden
• Woonoppervlakte ca. 38 m²
• Keuken met inbouwapparatuur
• Separate toilet en moderne badkamer
• Slaapkamer aan de achterzijde
• Centrale ligging in de wijk Levendaal-West

Kortom: een fijne benedenwoning met alles binnen handbereik!
Lees meer

Kenmerken

Overdracht

Vraagprijs
€ 250.000,- k.k.
Status
verkocht onder voorbehoud
Aanvaarding
in overleg

Bouw

Soort woning
appartement
Soort appartement
benedenwoning
Aantal woonlagen
1
Woonlaag
1
Kwaliteit
normaal
Bouwvorm
bestaande bouw
Bouwperiode
-1906
Open portiek
nee
Voorzieningen
tv kabel

Energie

Energielabel
B
Verwarming
c.v.-ketel
Warm water
c.v.-ketel
C.V.-ketel
gas gestookte combi-ketel uit 2011, eigendom

Oppervlakten en inhoud

Woonoppervlakte
37 m²

Indeling

Aantal kamers
2
Aantal slaapkamers
1

Buitenruimte

Ligging
in centrum en in woonwijk
Lees meer

Locatie

Interesse? Neem contact op met de makelaar!

Ik wil*