Hoefkade ONG
Hoefkade ONG
Hoefkade ONG
Hoefkade ONG
Hoefkade ONG

Hoefkade ONG

's-Gravenhage

prijs op aanvraag

Omschrijving

Nee

Direct bij de eigenaar

Borg
950

Garantiestelling
Mogelijk

Huurtoeslag
Niet mogelijk

Inkomen eis
3,1 X Maandhuur Bruto

Huurtermijn
Onbepaalde termijn

Oplevering
Kaal
Lees meer

Kenmerken

Overdracht

Huurprijs
prijs op aanvraag
Status
beschikbaar
Aanvaarding
in overleg

Bouw

Soort woning
appartement
Soort appartement
bovenwoning
Aantal woonlagen
1
Woonlaag
1
Bouwvorm
bestaande bouw
Bouwperiode
1971 - 1980
Open portiek
nee

Energie

Oppervlakten en inhoud

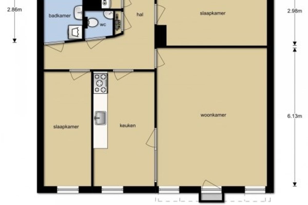
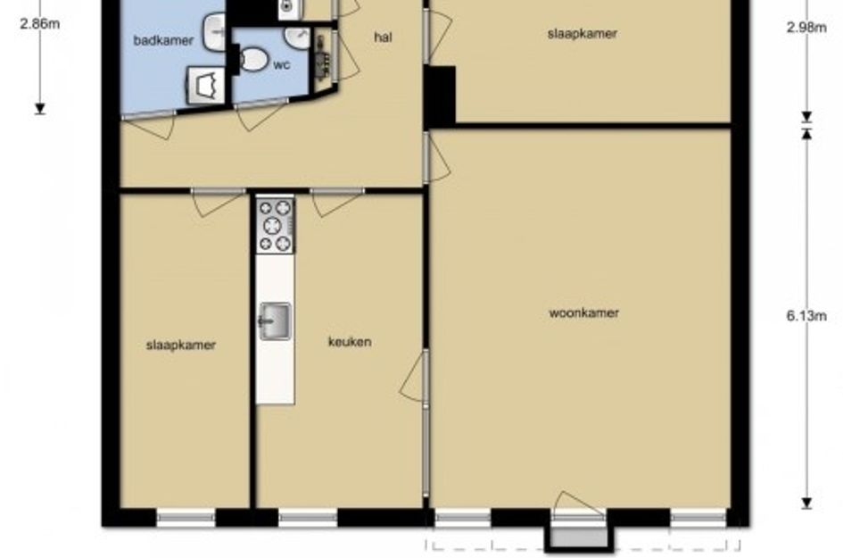
Woonoppervlakte
91 m²

Indeling

Aantal kamers
3
Aantal slaapkamers
2
Lees meer

Gallerij

Locatie

Interesse? Neem contact op met de makelaar!

Ik wil*