Omschrijving

Koopsom vanaf € 650.000,-

Modern, energiezuinig en instapklaar herenhuis met een woonoppervlakte van bijna 150m², een zonnige tuin met berging en een luxe afwerking!

De woning is gebouwd in 2023 en voldoet aan de hoogste eisen van comfort en duurzaamheid: Volledig geïsoleerd, HR+++ (triple) glas, vloerverwarming door de gehele woning, een WTW-installatie én een bodemwarmtepomp.

In een jonge en kindvriendelijke woonwijk van Roelofarendsveen, met volop groen en water in de directe omgeving, staat deze uitstekend onderhouden en recent opgeleverde gezinswoning. De woning beschikt over een royale uitgebouwde woonkamer met open keuken, moderne badkamer en maar liefst vier ruime slaapkamers verdeeld over twee woonlagen.

Dankzij het uitstekende energielabel en de luxe afwerking is deze woning direct te betrekken en woont u hier volledig toekomstbestendig!

Ligging:
Roelofarendsveen staat bekend om de ideale combinatie van groen, water en voorzieningen. Op korte afstand liggen het Braassemermeer en de Kagerplassen, perfect voor wie van varen, zeilen of suppen houdt. Voorzieningen zoals scholen, sportclubs, supermarkten en winkels vindt u binnen enkele minuten.

De ligging in de Randstad is bijzonder gunstig: Leiden, Den Haag, Amsterdam en Hoofddorp bereikt u binnen een half uur, Schiphol zelfs in 15 minuten. Ook met het openbaar vervoer is de woning uitstekend bereikbaar.

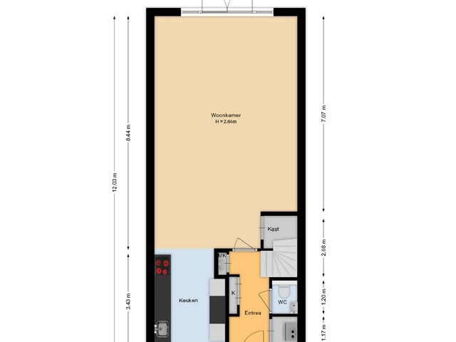
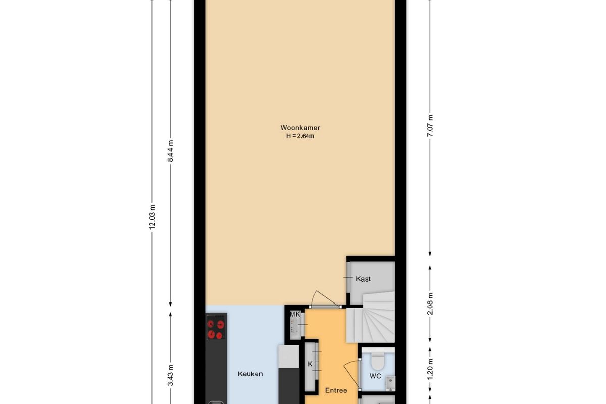
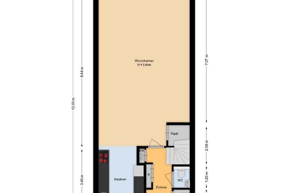
Indeling
Bij binnenkomst valt direct de lichte en royale woonkamer op. Dankzij de grote raampartijen en de openslaande deuren naar de tuin wordt binnen en buiten op een natuurlijke manier met elkaar verbonden. De strakke afwerking met egale wanden en een moderne vloer maakt de ruimte instapklaar.

De open keuken (2023) bevindt zich aan de voorzijde en is uitgevoerd in een stijlvol en praktisch design, voorzien van hoogwaardige inbouwapparatuur en een kokendwaterkraan. Een heerlijke plek om te koken en samen te komen.

De begane grond beschikt verder over een modern afgewerkt toilet en een ruime hal met garderobe.

Eerste verdieping
Op de eerste verdieping vindt u drie ruime slaapkamers, allen strak afgewerkt en voorzien van vloerverwarming. De kamers zijn ideaal als master bedroom, kinderkamer of thuiswerkplek. In de ouderslaapkamer is bovendien praktische vaste kastruimte aanwezig.

De luxe badkamer (2023) is volledig betegeld en uitgevoerd met een ruime inloopdouche, stijlvol wastafelmeubel en zwevend toilet. De moderne uitstraling en het gebruik van hoogwaardige materialen maken dit een fijne en praktische ruimte.

Tweede verdieping
De tweede verdieping is verrassend ruim en biedt volop mogelijkheden. Hier vindt u een grote open ruimte met veel lichtinval dankzij het dakraam. Deze verdieping is ideaal in te richten als vierde slaapkamer, werkkamer of hobbyruimte. Achter de schuine wanden is bovendien volop vaste kastruimte aanwezig.

Daarnaast is er een separate was- en stookruimte, uitgerust met aansluitingen voor zowel wasmachine als droger. Hier bevinden zich ook de moderne installaties van de bodemwarmtepomp en de WTW-unit. Dankzij de slimme indeling biedt deze ruimte niet alleen praktische voorzieningen, maar ook opvallend veel bergruimte.

Tuin
De achtertuin is zonnig en praktisch ingedeeld, met voldoende ruimte voor een terras en speelgelegenheid. Dankzij de gunstige ligging geniet u hier vrijwel de hele dag van de zon. Achterin de tuin staat een vrijstaande houten berging (ca. 5 m²), ideaal voor fietsen en tuingereedschap. Een achterom maakt de tuin extra praktisch in gebruik.

Bijzonderheden
- Bouwjaar 2023
- Woonoppervlakte: ca. 147 m² / Inhoud: ca. 530 m³
- Perceeloppervlak: 139 m² eigen grond
- Energiezuinige woning met bodemwarmtepomp, WTW-installatie en vloerverwarming door de gehele woning
- Volledig geïsoleerd, voorzien van HR+++ triple glas
- Luxe keuken (2023) met inbouwapparatuur
- Moderne badkamer (2023)
- Vier ruime slaapkamers
- Zonnige achtertuin met berging en achterom
- Gelegen in een jonge woonwijk met uitstekende voorzieningen
- Centrale ligging in de Randstad, Schiphol binnen 15 minuten bereikbaar

Koopsom vanaf € 650.000,- / Vraagprijs € 700.000,-
Alle biedingen vanaf €650.000,- worden in overweging genomen.
Lees meer

Kenmerken

Overdracht

Koopsom
€ 650.000,- k.k.
Status
beschikbaar
Aanvaarding
in overleg

Bouw

Soort woning
woonhuis
Soort woonhuis
herenhuis
Type woonhuis
tussenwoning
Aantal woonlagen
3
Kwaliteit
luxe
Bouwvorm
bestaande bouw
Bouwperiode
2011-
Dak
zadeldak
Keurmerken
energie Prestatie Advies
Voorzieningen
glasvezel kabel

Energie

Energielabel
A+++
Verwarming
vloerverwarming geheel, warmtepomp en warmte terugwininstallatie

Oppervlakten en inhoud

Woonoppervlakte
147 m²
Perceeloppervlakte
131 m²
Inhoud
530 m³
Inpandige ruimte oppervlakte
147 m²

Indeling

Aantal kamers
5
Aantal slaapkamers
4

Buitenruimte

Ligging
aan rustige weg en in woonwijk
Lees meer

Locatie

Interesse? Neem contact op met de makelaar!

Ik wil*