Omschrijving

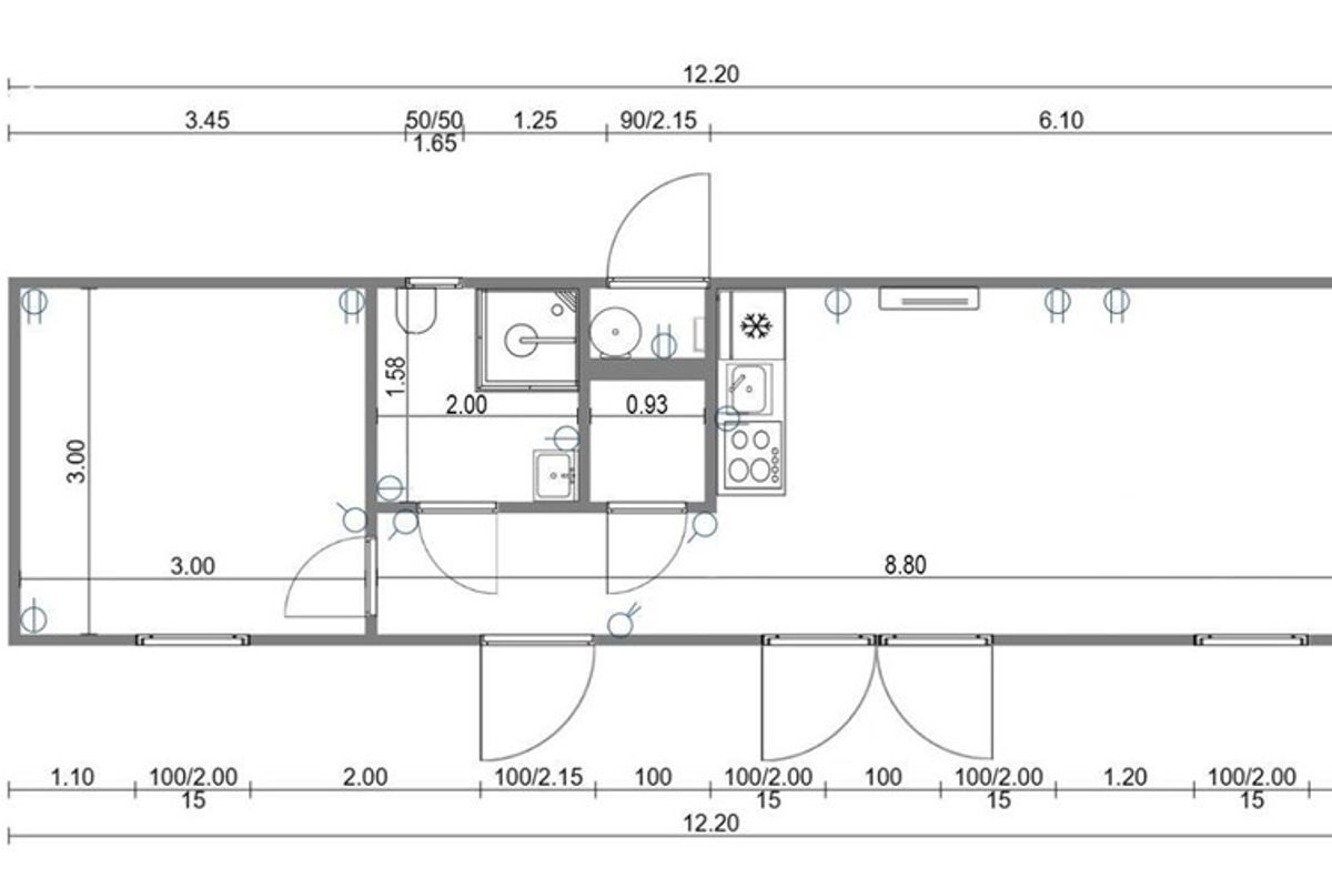
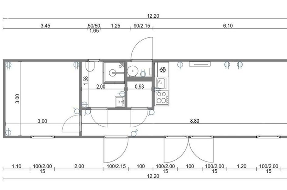
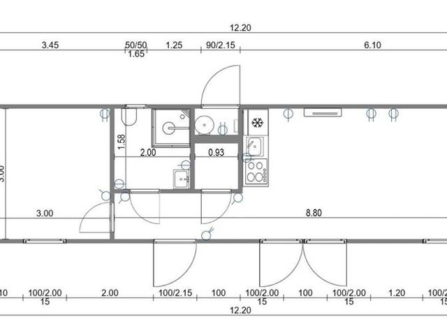
TE Koop : Mobiele woning ,bestaande uit woonkamer met tuindeuren ,inbouwkeuken met vaatwasser ,koelkast kookplaat, afzuigkap ,een slaapkamer ,badkamer met douche ,toilet en wastafel totaal in perfecte staat . (verkoper wil voor 1500 euro inclusief BTW de mobiele wagen brengen op een adres in noord Limburg .
Lees meer

Kenmerken

Overdracht

Vraagprijs
€ 45.375,- v.o.n.
Status
beschikbaar
Aanvaarding
per direct

Bouw

Soort woning
woonhuis
Soort woonhuis
woonwagen
Type woonhuis
vrijstaande woning
Aantal woonlagen
2
Bouwvorm
bestaande bouw
Bouwjaar
2025
Bouwperiode
vanaf 2011
Recreatiewoning
Ja
Permanente bewoning
niet toegestaan
Onderhoud binnen
uitstekend
Onderhoud buiten
uitstekend

Energie

Oppervlakten en inhoud

Woonoppervlakte
36 m²
Perceeloppervlakte
200 m²
Inhoud
94 m³

Indeling

Aantal kamers
2
Aantal slaapkamers
1
Lees meer

Locatie

Interesse? Neem contact op met de makelaar!

Ik wil*