Welkom bij Roxxle
Inloggen
Registreren
E-mailadres
Wachtwoord
Inloggen
Wachtwoord vergeten?
E-mailadres
Wachtwoord
Ik ben een makelaar en wil een zakelijk account aanmaken
Registreren
Koopwoningen
Huurwoningen
Buitenland
Nieuwbouw
Actueel
Kantoren
Contact
Inloggen
Dr. J. W. Paltelaan
Zoetermeer
prijs op aanvraag
Verhuur
makelaar:
Rentwebs
040-3041912
info@rentwebs.nl
Neem contact op met de makelaar
Omschrijving
Bemiddelingskosten
Nee
Object
Direct bij de eigenaar
Borg
795
Garantiestelling
Niet mogelijk
Huurtoeslag
Mogelijk
Inkomen eis
N.V.T.
Huurtermijn
Onbepaalde termijn
Oplevering
Kaal
Lees meer
Kenmerken
Overdracht
Huurprijs
prijs op aanvraag
Status
beschikbaar
Aanvaarding
in overleg
Bouw
Soort woning
appartement
Soort appartement
bovenwoning
Aantal woonlagen
1
Woonlaag
1
Bouwvorm
bestaande bouw
Bouwperiode
1971 - 1980
Open portiek
nee
Energie
Oppervlakten en inhoud
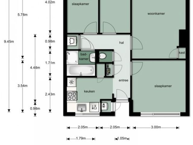
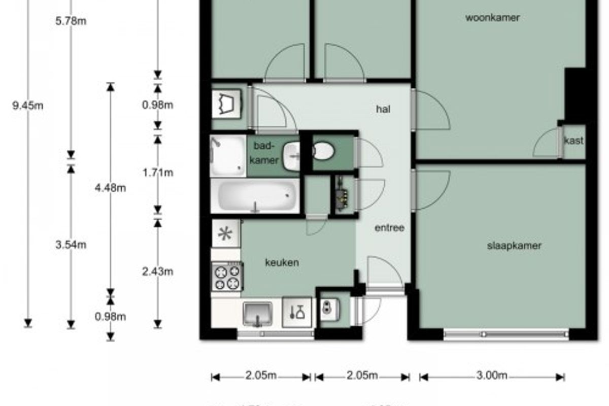
Woonoppervlakte
74 m²
Indeling
Aantal kamers
4
Aantal slaapkamers
3
Lees meer
Gallerij
Locatie
Interesse? Neem contact op met de makelaar!
Ik wil*
Een bezichtiging aanvragen
Meer informatie
Naam *
Telefoonnummer
Email *
Bericht *
Verstuur