Dr. J. W. Paltelaan ONG
Dr. J. W. Paltelaan ONG

Dr. J. W. Paltelaan ONG

Zoetermeer

prijs op aanvraag

Omschrijving

Nee

Direct bij de eigenaar

Borg
975

Garantiestelling
Niet mogelijk

Huurtoeslag
Niet mogelijk

Inkomen eis
3,2 X Maandhuur Bruto

Huurtermijn
Onbepaalde termijn

Oplevering
Kaal
Lees meer

Kenmerken

Overdracht

Huurprijs
prijs op aanvraag
Status
beschikbaar
Aanvaarding
in overleg

Bouw

Soort woning
appartement
Soort appartement
bovenwoning
Aantal woonlagen
1
Woonlaag
1
Bouwvorm
bestaande bouw
Bouwperiode
1971 - 1980
Open portiek
nee

Energie

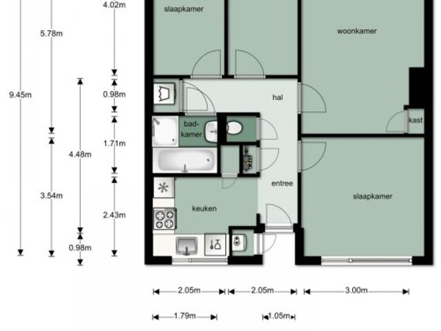
Oppervlakten en inhoud

Woonoppervlakte
74 m²

Indeling

Aantal kamers
4
Aantal slaapkamers
3
Lees meer

Gallerij

Locatie

Interesse? Neem contact op met de makelaar!

Ik wil*