De Spinde 1A102

De Spinde 1A102

Hardenberg

€ 509.000,- v.o.n.

Omschrijving

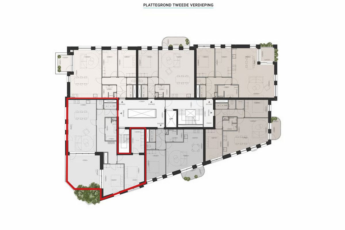
Appartement 2.1

Dit moderne nieuwbouw hoekappartement op de tweede verdieping maakt deel uit van het project De Spinde in Hardenberg. Gelegen in gebouw De Kaarden, combineert het appartement comfort, duurzaamheid en een gunstige ligging vlakbij het centrum.

Indeling

Het appartement heeft een woonoppervlakte van circa 100 m² en is praktisch ingedeeld. Vanuit de hal zijn de diverse ruimtes bereikbaar, waaronder de meterkast, technische ruimte, het toilet, de badkamer, een berging en twee slaapkamers. De woonkamer met open keuken vormt het centrale hart van de woning. Vanuit zowel de woonkamer als één van de slaapkamers heeft u direct toegang tot het balkon, een heerlijke plek om buiten te ontspannen.


Het project

Winkels maken plaats voor moderne nieuwbouwappartementen met maatschappelijke en commerciële voorzieningen op de begane grond. Aan het Spindeplein komt een extra ingang voor de parkeergarage (waarvoor een abonnement kan worden aangevraagd) en er wordt een aantrekkelijke looproute naar het centrum aangelegd. Het gebied wordt bovendien goed toegankelijk voor mindervaliden.

In het ontwerp is veel aandacht besteed aan vergroening – van fraai ontworpen plantenbakken tot plekken waar bomen kunnen worden geplaatst. Daarnaast wordt gebouwd met duurzame materialen en energiezuinige installaties. Dankzij de slimme, aanpasbare plattegronden zijn de woningen toekomstbestendig en geschikt voor verschillende levensfases.

Dankzij de centrale ligging woont u hier rustig, maar met alle voorzieningen binnen handbereik. Ideaal voor wie modern, duurzaam en comfortabel wil wonen in het hart van Hardenberg. In De Kaarden komen rust, comfort en het stadse leven op een bijzondere manier samen.


Bijzonderheden
- Energielabel A+++
- Keuken is naar wens en voor eigen rekening te selecteren
- Voor het sanitair en de tegels is een waardecheque beschikbaar
Lees meer

Kenmerken

Overdracht

Vraagprijs
€ 509.000,- v.o.n.
Status
beschikbaar
Aanvaarding
in overleg

Bouw

Soort woning
appartement
Soort appartement
bovenwoning
Aantal woonlagen
1
Woonlaag
2
Bouwvorm
nieuwbouw
Bouwperiode
2011-
Open portiek
nee
Dak
samengesteld dak
Voorzieningen
tv kabel, zonnecollectoren en glasvezel kabel

Energie

Energielabel
A++
Verwarming
vloerverwarming geheel, elektrische verwarming en warmtepomp

Oppervlakten en inhoud

Woonoppervlakte
100 m²

Indeling

Aantal kamers
3
Aantal slaapkamers
2

Garage / Schuur / Berging

Schuur/berging
inpandig
Lees meer

Gallerij

Plattegronden

Interesse? Neem contact op met de makelaar!

Ik wil*