Daelenbroek 5
Daelenbroek 5
Daelenbroek 5
Daelenbroek 5
Daelenbroek 5
Daelenbroek 5
Daelenbroek 5
Daelenbroek 5
Daelenbroek 5
Daelenbroek 5
Daelenbroek 5
Daelenbroek 5
Daelenbroek 5
Daelenbroek 5
Daelenbroek 5
Daelenbroek 5
Daelenbroek 5
Daelenbroek 5
Daelenbroek 5
Daelenbroek 5

Daelenbroek 5

Amsterdam

€ 3.195.000,- k.k.

Omschrijving

TOTALLY STUNNING! This luxurious DETACHED VILLA in POSH AMSTERDAM offers you about 287 m2 of living on a south oriented plot of land of 537 m2 with water and park view!

Located in Buitenveldert with everything around a capital citizen can wish. From supermarkets, shopping centers, (private) schools, parks, the Amsterdam forest, public transport, business district Zuidas, Airport Schiphol, the bustling city centre, you name it and it is nearby.

Let us guide you through the property, which entire interior was designed by the well known Dutch interior designer Guy de Vos.

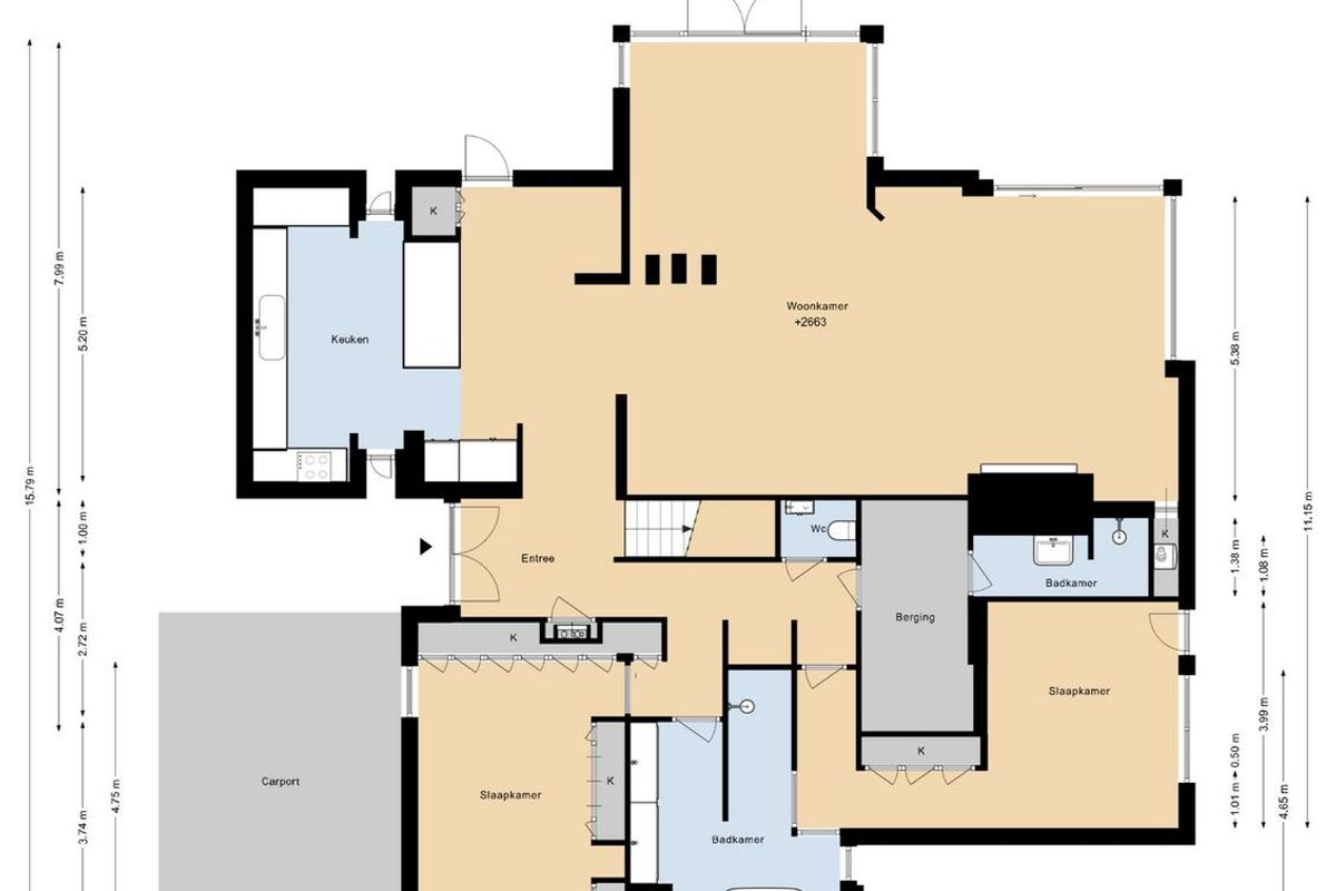
Arriving at Daelenbroek 5, you easily park two cars under your carport of almost 26m2. The property is equipped with alarm system and is video surveilled. From the front you can access the back or front garden by a secure gate or enter the villa in the central hall.

The large kitchen is finished with natural stone backwall and countertop and offers a lot of build in appliances. Of course there is a dishwasher, Quooker, oven, microwave, large American fridge, extra wide induction plate, extractor and wine cooler. You can enjoy your meal in the kitchen or the dining area at the living.

Throughout the entire property an Oak wooden floor is installed, but in the living there is a bright natural stone floor.

The living is huge, plenty of space but also daylight because of the large amount of glass. Build-in compartments for the large flatscreen with underneath a nice gas fire place. Throughout the house there are several options to enter the garden.

The garden surrounds the property. The front side offers enough space to provide the needed privacy, whilst the backside offers all the space you would want. Although the main garden is oriented south, gardens this size offer you sun throughout the entire day. Located at the water, overviewing the park, it doesn’t get much better. The garden offers a large storage and a glasshouse of together almost 30 m2. The garden is well maintained, here the neighbors grass will never be greener.

Once back inside we will show you the rest of the ground floor that offers you two large bedrooms and two bathrooms. The largest bedroom offers a remarkable amount of build-in closets and nearby access to the bathroom with double sinks, bathtub and shower. The second bedroom is also large and could use the other bathroom with shower and sink as it’s own. The ground floor offers a spacious separate toilet and storage area.

The first floor is reached by a spacious and well-lit stairs.

The landing offers space for diverse usage. The master bedroom is about 23m2 large, has direct access to the adjacent balcony of almost 9 m2 and is connected to the third bathroom. This bathroom is equipped with double sinks, double shower and again a free-standing oval bathtub. Adjacent a separate toilet, washing area and a full dressing room. The second large bedroom on this floor is about 20m2 large and has a view on the front side and the green roof of the house.

The property is located on landlease ground of the municipality of Amsterdam. The yearly payment is currently about € 965,- a year. Landlease payments are tax deductible. The current period of continuous right of landlease runs until 31st of January 2035. There is an indication available for the period after, to settle the yearly payment or to buy it perpetually for a lump sum.

This spectacular property is worth your viewing and is available in consultation.

Specifics:
- Detached Villa on great location;
- 287 m2 of living pleasure, about 30 m2 in the garden;
- Parking spots under the carport;
- Garden around, plot is 537 m2 large;
- Main garden facing south with water and park view;
- 4 large bedrooms, 3 bathrooms;
- High end finishings;
- Easy to improve sustainablilty;

This information has been compiled by us with due care. On our part, however, no liability is assumed for any incompleteness, inaccuracy or otherwise, or the consequences thereof. All specified sizes and surfaces are indicative. Buyer has his own duty to investigate all matters that are important to him or her. Regarding this property, the broker is an advisor to the seller. We advise you to call in an expert broker who guides you through the purchase process. If you have specific wishes regarding the property, we advise you to make this known forehanded to your buying broker and to do research any matters that interest you independently. If you do not involve an expert representative, you will consider yourself, according to the law, to be sufficiently competent to oversee all matters that are of interest.

-----

OVERWELDIGEND MOOI! Deze luxe VRIJSTAANDE VILLA in CHIQUE AMSTERDAM biedt u circa 287 m2 woonoppervlak op een op het zuiden gelegen perceel van 537 m2 met uitzicht op water en park!

Gelegen in Buitenveldert met alles wat een hoofdstedeling zich maar kan wensen. Van supermarkten, winkelcentra, (particuliere) scholen, parken, het Amsterdamse bos, openbaar vervoer, zakenwijk Zuidas, Schiphol, het bruisende stadscentrum, noem maar op en het is in de buurt.

Laat ons u rondleiden door deze woning, waarvan het interieur is ontworpen door de bekende Nederlandse ontwerper Guy de Vos.

Aangekomen bij Daelenbroek 5 kunt u gemakkelijk twee auto's parkeren onder uw carport van bijna 26 m². De woning is voorzien van een alarmsysteem en cameratoezicht. Vanuit de voorzijde heeft u toegang tot de achter- of voortuin via een afgesloten poort of betreed u de villa via de centrale hal.
De riante keuken is afgewerkt met onder andere een natuurstenen achterwand en werkblad en biedt veel inbouwapparatuur. Uiteraard is er een vaatwasser, Quooker, oven, magnetron, grote Amerikaanse koelkast, extra brede inductiekookplaat, afzuigkap en wijnkoeler. Uw maaltijd kunt u genieten in de keuken of in de eethoek in de woonkamer.

Door het gehele pand ligt een mooie eikenhouten vloer, behalve de woonkamer die voorzien is van een lichte natuurstenen vloer.

De woonkamer is enorm ruim van opzet en is zeer licht dankzij de grote hoeveelheid glas dat gebruikt is. Tevens is deze voorzien van ingebouwde compartimenten voor een groot formaat flatscreen en daaronder een grote gashaard. Door het hele huis zijn er verschillende mogelijkheden om de tuin te betreden.

De tuin ligt rondom de woning. De voorkant biedt voldoende ruimte voor de nodige privacy, terwijl de achterkant alle ruimte biedt die u zich maar kunt wensen. Hoewel de hoofdtuin op het zuiden ligt, bieden tuinen van deze omvang u de hele dag door zon. Gelegen aan het water, met uitzicht op het park, veel beter wordt het niet. In de tuin treft u nog een ruime berging en kleine kas van samen bijna 30 m2. De tuin is goed onderhouden, het gras van de buren zal hier nooit groener zijn.

Eenmaal terug binnen laten we u de rest van de begane grond zien, die maar liefst twee grote slaapkamers en twee badkamers biedt. De grootste slaapkamer is afgewerkt met bijzonder veel inbouwkasten en ligt vlak bij de riante badkamer met dubbele wastafel, bad en douche. De tweede slaapkamer is ook groot en kan gebruikmaken van de andere badkamer met douche en wastafel. De begane grond heeft een ruim apart toilet en een berging.

De eerste verdieping is bereikbaar via een ruime en mooi verlichte trap.

De overloop biedt ruimte voor divers gebruik. De hoofdslaapkamer is ongeveer 23 m² groot, heeft directe toegang tot het aangrenzende balkon van bijna 9 m² en is verbonden met de derde badkamer. Deze badkamer is uitgerust met dubbele wastafels, dubbele douche en opnieuw een vrijstaand ovaal bad. Aangrenzend bevinden zich een apart toilet, een wasruimte en een complete kleedkamer. De tweede grote slaapkamer op deze verdieping is ongeveer 20 m² groot en heeft uitzicht op de voorzijde en het groene dak van het huis.

Het pand is gelegen op erfpachtgrond van de gemeente Amsterdam. De jaarlijkse betaling bedraagt momenteel ongeveer € 965,- per jaar. Erfpachtbetalingen zijn fiscaal aftrekbaar. De huidige periode van ononderbroken erfpachtrecht loopt tot 31 januari 2035. Er is een indicatie beschikbaar voor de periode daarna, om de jaarlijkse betaling te regelen of om het erfpachtrecht voor eenmalig bedrag af te kopen.

Deze spectaculaire woning is zeker een bezichtiging waard en is beschikbaar in overleg.

Bijzonderheden:
- Vrijstaande villa op geweldige locatie;
- 287 m² woonplezier, ongeveer 30 m² in de tuin;
- Parkeerplaatsen onder de carport;
- Tuin rondom, perceel is 537 m² groot;
- Hoofdtuin op het zuiden met uitzicht op water en park;
- 4 grote slaapkamers, 3 badkamers;
- Hoogwaardige afwerking;
- Gemakkelijk te verbeteren duurzaamheid;

Deze informatie is door ons met de nodige zorgvuldigheid samengesteld. Onzerzijds wordt echter geen enkele aansprakelijkheid aanvaard voor enige onvolledigheid, onjuistheid of anderszins, dan wel de gevolgen daarvan. Alle opgegeven maten en oppervlakten zijn indicatief. Koper heeft zijn of haar eigen onderzoek plicht naar alle zaken die voor hem of haar van belang zijn. Met betrekking tot deze woning is de makelaar adviseur van de verkoper. Wij adviseren u een deskundige makelaar in te schakelen die u begeleidt bij het aankoopproces. Indien u specifieke wensen heeft omtrent de woning, adviseren wij u deze tijdig kenbaar te maken aan uw aankopende makelaar en hiernaar zelfstandig onderzoek te (laten) doen. Indien u geen deskundige vertegenwoordiger inschakelt, acht u zich volgens de wet deskundig genoeg om alle zaken die van belang zijn te kunnen overzien.
Lees meer

Kenmerken

Overdracht

Vraagprijs
€ 3.195.000,- k.k.
Status
beschikbaar
Aanvaarding
in overleg

Bouw

Soort woning
woonhuis
Soort woonhuis
villa
Type woonhuis
vrijstaande woning
Aantal woonlagen
2
Kwaliteit
luxe
Bouwvorm
bestaande bouw
Huidige bestemming
woonruimte
Dak
plat dak
Voorzieningen
buitenzonwering, mechanische ventilatie, tv kabel, glasvezel kabel en alarminstallatie

Energie

Energielabel
D
Verwarming
c.v.-ketel
Warm water
c.v.-ketel

Oppervlakten en inhoud

Woonoppervlakte
287 m²
Perceeloppervlakte
537 m²
Inhoud
938 m³
Buitenruimte oppervlakte
35 m²

Indeling

Aantal kamers
5
Aantal slaapkamers
4

Buitenruimte

Ligging
aan water, aan rustige weg, in woonwijk en vrij uitzicht

Garage / Schuur / Berging

Garage
carport
Schuur/berging
vrijstaand hout
Lees meer

Locatie

Interesse? Neem contact op met de makelaar!

Ik wil*