Brigantijnstraat ONG
Brigantijnstraat ONG
Brigantijnstraat ONG

Brigantijnstraat ONG

Rotterdam

prijs op aanvraag

Omschrijving

Nee

Direct bij de eigenaar

Borg
820

Garantiestelling
Niet mogelijk

Huurtoeslag
Mogelijk

Inkomen eis
N.V.T.

Huurtermijn
Onbepaalde termijn

Oplevering
Kaal
Lees meer

Kenmerken

Overdracht

Huurprijs
prijs op aanvraag
Status
beschikbaar
Aanvaarding
in overleg

Bouw

Soort woning
appartement
Soort appartement
bovenwoning
Aantal woonlagen
1
Woonlaag
1
Bouwvorm
bestaande bouw
Bouwperiode
1971 - 1980
Open portiek
nee

Energie

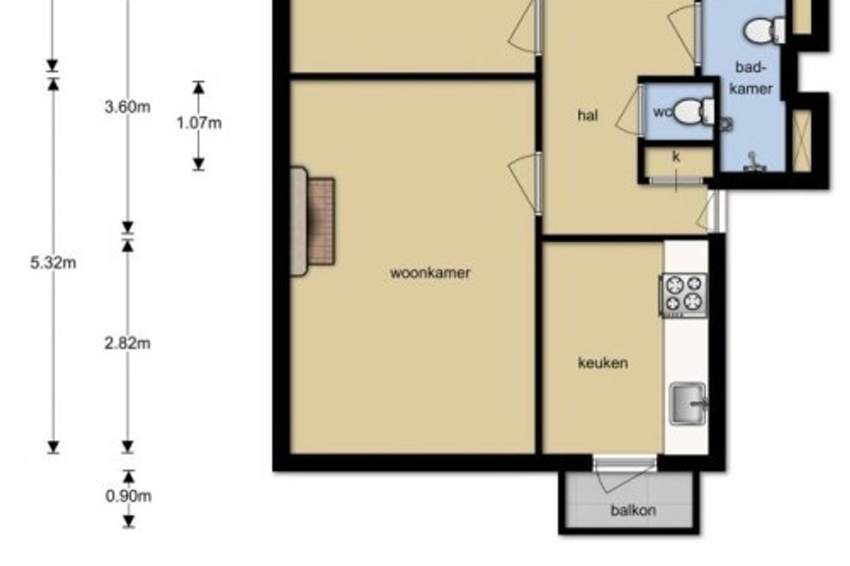
Oppervlakten en inhoud

Woonoppervlakte
60 m²

Indeling

Aantal kamers
3
Aantal slaapkamers
2
Lees meer

Gallerij

Locatie

Interesse? Neem contact op met de makelaar!

Ik wil*