Elements Terschelling – laatste kans op een exclusieve recreatiewoning aan zee!
Op het schitterende Waddeneiland Terschelling bevindt zich Elements Terschelling: 25 luxe recreatieappartementen in een stijlvol wellnesshotel, direct bovenop de duinen en pal aan het brede Noordzeestrand. De bouw bevindt zich inmiddels in de afrondende fase – de oplevering staat gepland voor Q4 2025, waarna eigen gebruik en verhuur vanaf januari 2026 kunnen starten.
Dit is je kans, want er zijn nog slechts vier appartementen beschikbaar!
Appartement 9 – volledig ingericht 4-persoons duplex appartement. 
Appartement nummer 9 is een duplex appartement met een woonoppervlakte van 67m², geschikt voor 4 personen. 
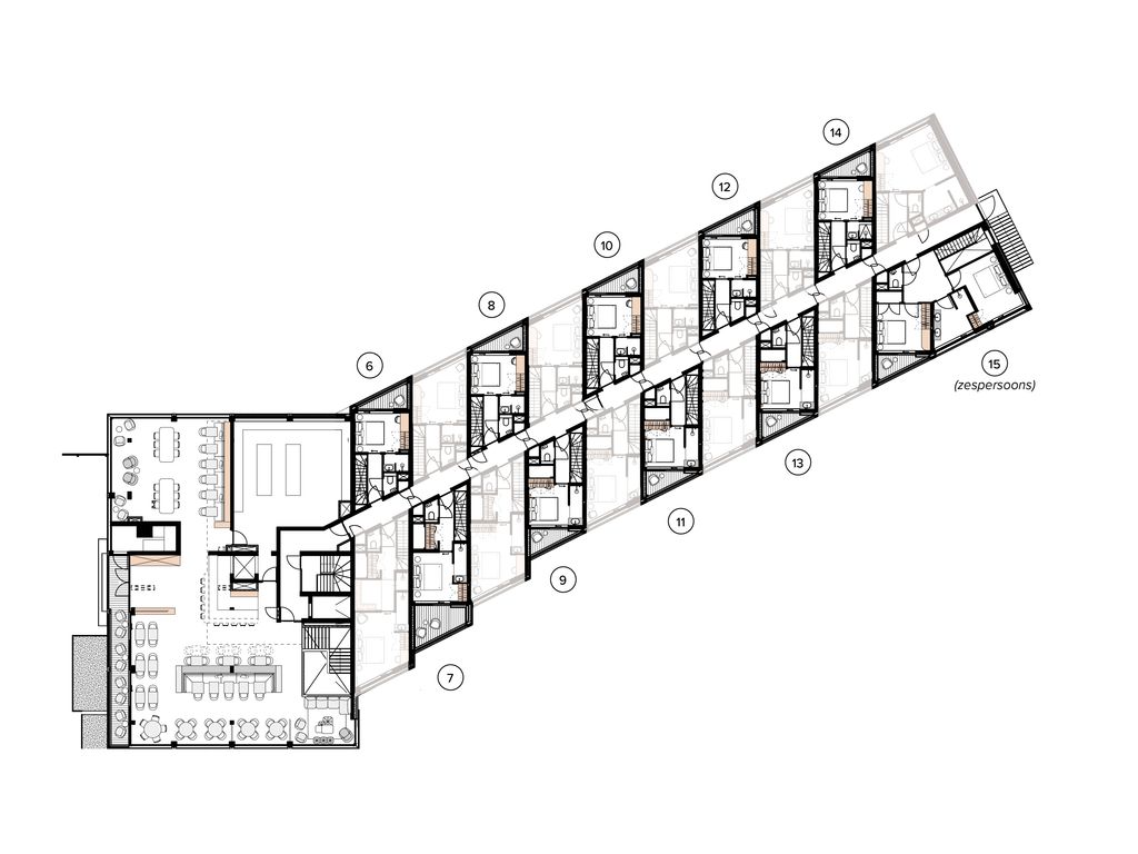
Een centrale gang op de tweede verdieping biedt toegang tot de duplex appartementen. Via de hal, met aansluitend een slaapkamer met badkamer en balkon op het zuiden, bereik je per trap naar beneden de doorzonverdieping. Hier ligt de doorzonverdieping dus op de 1e etage.
De doorzonverdieping beschikt over een ruime woonkamer met balkon op het zuiden en een open keuken. Aan de noordzijde bevindt zich een tweede slaapkamer met eigen badkamer en balkon dat uitkijkt op de duinen grenzend het Noordzeestrand. Hier hoor, ruik en voel je de zee en zilte zeelucht direct bij het ontwaken. Met behulp van de plattegrond krijg je een goede indruk van de indeling van deze recreatiewoning. 
Het beste van twee werelden
Als eigenaar of gast geniet je van de vrijheid van een eigen appartement, maar ook van alle luxe hotelfaciliteiten van Elements Terschelling. Denk aan het restaurant en de bar met terras, de wellnessvoorzieningen en de receptie die je volledig ontzorgt.
Het appartement wordt bovendien volledig turnkey opgeleverd en tot in detail ingericht door Hinabaay. Elk detail is doordacht: van de stijlvolle meubels tot de complete inventaris. Zo stap je direct binnen in een sfeervol en gebruiksklaar vakantieverblijf.
Dankzij natuurlijke materialen, zoals vergrijzend hout, gaat het gebouw volledig op in zijn omgeving. Een duurzaam, gasloos en emissievrij complex met energielabel A+++ en A++, zonnepanelen op het groene dak en een ontwerp dat de natuur versterkt in plaats van verstoort. Vanwege de unieke locatie is er sprake van een recht van erfpacht uitgegeven door de grondeigenaar Staatsbosbeheer (de canon voor het gehele complex bedraagt tot 2052 slechts €8,19 per jaar). 
Voor eigenaren geldt een gebruiksrecht tot 90 dagen per jaar met volop mogelijkheden in het hoogseizoen. De overige tijd wordt het appartement verhuurd via de organisatie Dutchen. Hierdoor worden vakantieplezier én een solide investering gecombineerd. Je wordt volledig ontzorgd, want de appartementen worden turnkey opgeleverd, compleet met interieur en inventaris verzorgd door een eigen ontwerpteam.
Een extra voordeel: als koper betaalt u geen overdrachtsbelasting, en doordat het een BTW-belast verhuurobject betreft, kan de BTW worden teruggevorderd.
De bouw is vergevorderd, waardoor een bezichtiging op locatie absoluut de moeite waard is. Ervaar zelf de kwaliteit, de rust en het weidse uitzicht over de Noordzee en de duinen.
Op dit moment zijn de appartementen nummer 1 & 2 (6 persoons benedenwoning) en 7 & 9 ( 4 persoons duplex appartement) nog beschikbaar. Wil je meer weten over de laatste beschikbare appartementen? Vraag direct de brochure via Funda, de projectwebsite of neem contact op met de verkopend makelaar Sanne de Jong. Zij vertelt je graag alles over dit unieke project.
Grijp nu je kans – dit is hét moment om jouw plek op Terschelling veilig te stellen!
Indeling
Een centrale gang op de tweede verdieping biedt toegang tot de duplex appartementen. Via de hal, met aansluitend een slaapkamer met badkamer en balkon op het zuiden, bereik je per trap naar beneden de doorzonverdieping. Hier ligt de doorzonverdieping dus op de 1e etage.
De doorzonverdieping beschikt over een ruime woonkamer met balkon op het zuiden en een open keuken. Aan de noordzijde bevindt zich een tweede slaapkamer met balkon en uitzicht over zee. 
Bijzonderheden
- Kijk voor meer informatie en beeldmateriaal op de projectpagina: https://www.elementsterschelling.nl. 
- De vorderingen van de bouw zijn mooi vastgelegd in een bouwblog: https://www.elementsterschelling.nl/bouwblog
- Voor het verzorgen van de complete inventaris wordt een verplichte bijdrage gerekend. De bijdrage voor het volledig verzorgde design interieur en turnkey oplevering van de 6-persoons woning nummer 9 bedraagt van €60.000,-- excl. BTW. 
- De gemelde prijzen zijn exclusief BTW. Er geldt geen overdrachtsbelasting. Doordat het een met BTW belast verhuurobject betreft kunt u de BTW terugvorderen.
                            
                             
                                         
                                         
                                         
                                         
                                         
                                         
                                         
                                         
                                         
                                         
                                         
                                         
                                         
                                         
                                         
                                             
                                             
                                             
                                             
                                             
                                             
                                             
                                             
                                             
                                             
                                             
                                             
                                             
                                             
                                             
                                     
                                    